RESTART- Newtownbutler Community Hub

Newtownbutler Community Hub

Delivery Lead: Fermanagh and Omagh District Council

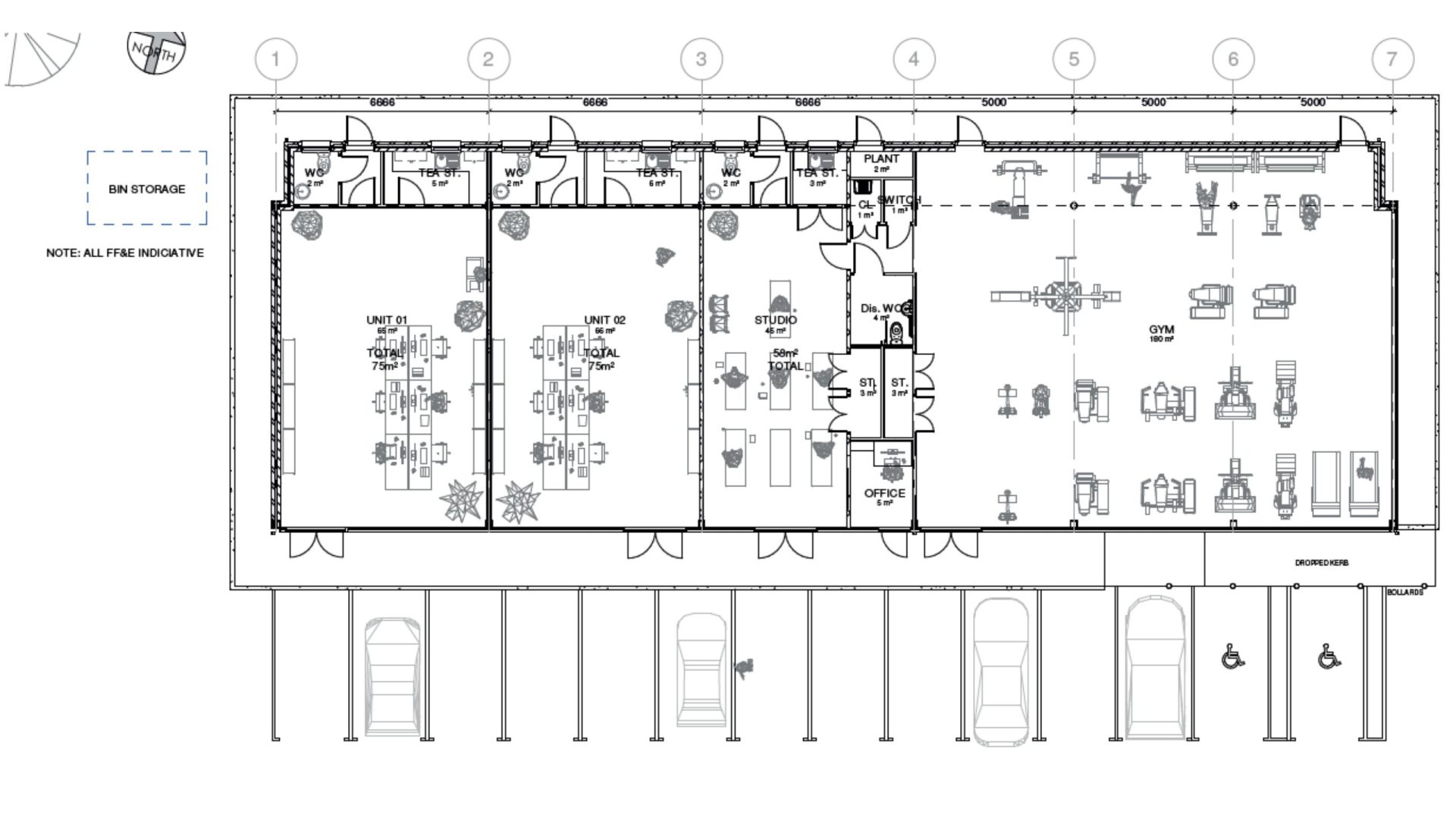
The Community Hub, incorporating workspace units, a community gym, and studio space, will create an iconic, transformative, and inclusive development on the former PSNI site in  Newtownbutler. Through investment in codesigned, sustainable infrastructure, the project Will facilitate meaningful and purposeful contact between communities and provide a lasting Legacy for the village.

The closure and subsequent demolition of the station, a prominent landmark on the streetscape, compounded the sense of neglect and abandonment created by the high number of vacant properties and sites. Building on previous cross-community initiatives, Fermanagh and Omagh District Council engaged with local residents to identify appropriate and beneficial uses for the site.

Public consultation highlighted a range of key issues affecting the village, including dereliction, a lack of community spaces and services, the need for business and enterprise units, health and wellbeing initiatives, youth provision, and leisure and gym facilities.

Investment in the 1.6-acre site will deliver a community gym and studio, providing space for services to operate locally, alongside two enterprise units suitable for light industrial use. Together, these elements will support local entrepreneurship, improve access to services, and contribute to the social and economic regeneration of Newtownbutler.

Public Attend Consultation Event on Plans for New Community Hub

Residents were invited to share their views on exciting proposals for a new Community Hub in Newtownbutler — a project designed to bring people together, improve access to local services, and create a welcoming shared space for the whole community.

The proposed Community Hub will be located on the site of the former PSNI station and will feature a community gym, studio space, and business units. The facility will operate as a community asset and be managed as a social enterprise, helping to ensure long-term benefits for local people.

The drop-in consultation event gave members of the public the opportunity to view the initial plans, speak directly with the project team, and provide feedback that will help shape the future development of the Hub.

Community response to the proposals was overwhelmingly positive, with many attendees describing the project as the beginning of a new era of regeneration and investment in Newtownbutler.

Following the strong endorsement from the local community, the project team is now progressing to the next stage of development and anticipates that work on site will begin in early 2027.