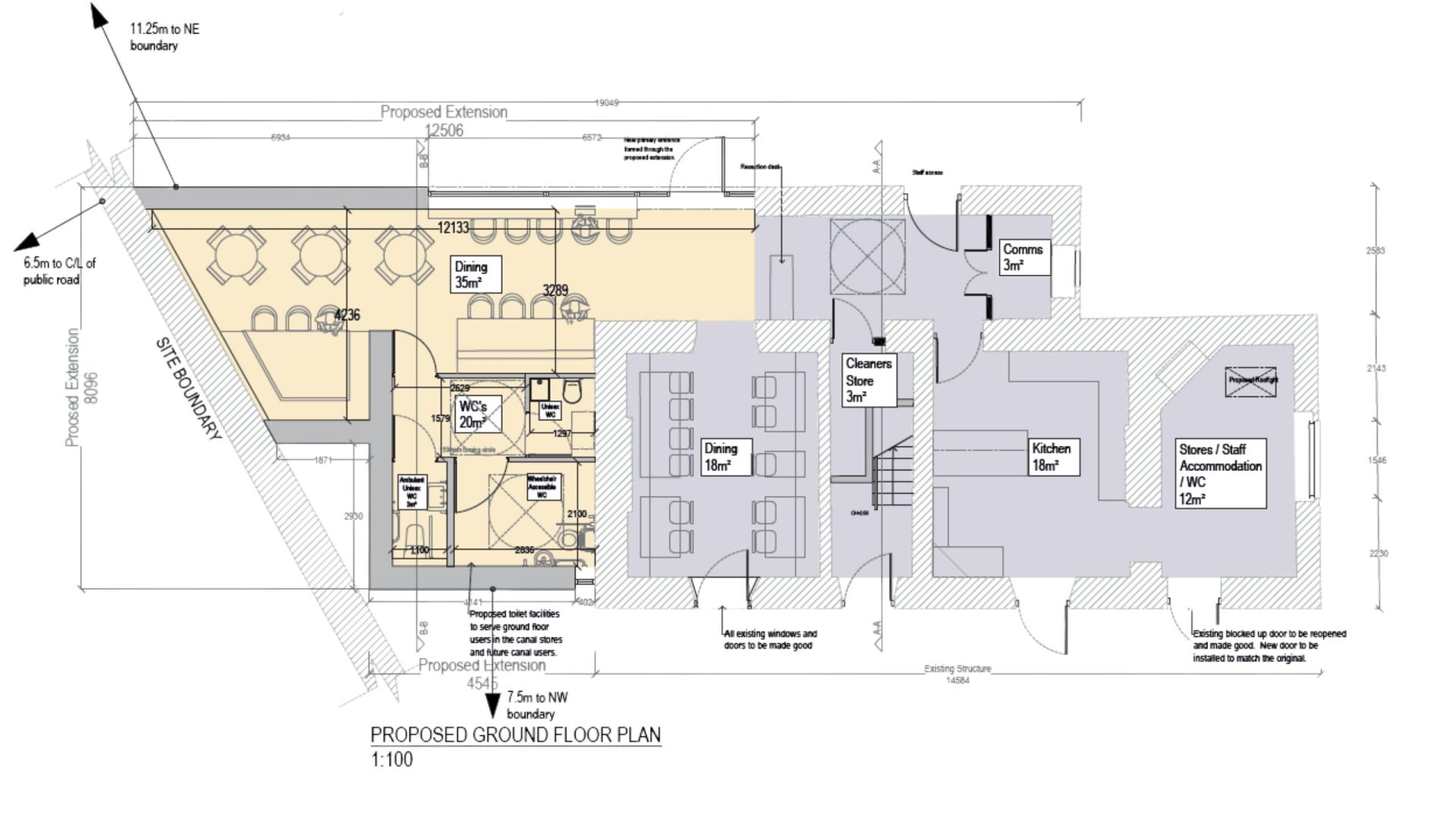
RESTART: Clones Canal Stores Hub
Delivery Lead: Monaghan County Council
Redevelopment of the former canal workers’ cottage at Ulster Canal Stores to support:
- Expansion of Meals on Wheels
- Community space provision
Clones Canal Stores Hub
Delivery Lead: Monaghan County Council
Redevelopment of the former canal workers’ cottage at Ulster Canal Stores to support: